
1、魯式鼓風機壓送—壓送型葉輪采用最先進之四軸加工一次加工法,以減少認為誤差,提升葉輪之精密度,并提高鼓風機之效率。
2、免潤滑油無故障:在轉子與轉子間,及轉子與殼體間,設有適當間隙,在運轉中互不接觸,內部不需潤滑處理、機械部分之接觸,采正時齒輪齒合模式、且殼體(轉子動作室)以側蓋汽油分離,不致有潤滑油混入之虞,故吐出只氣體為不含油成分之清凈空氣,即使在長期運轉情況下,亦可安心使用。
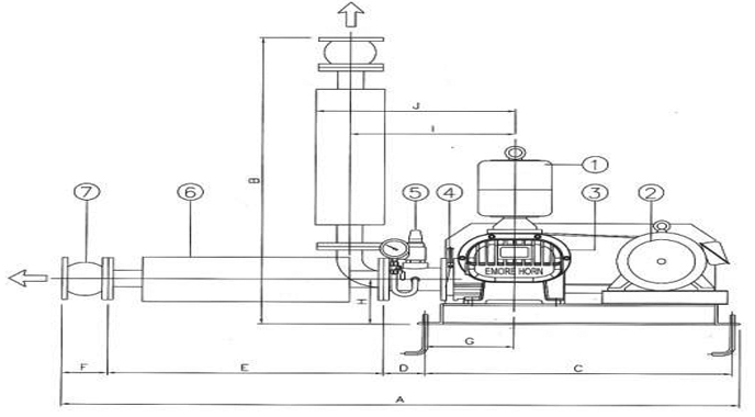
3、高度標準化之組件、品質保證,所有零件均經CNC自動化工作母機加工,規格均一致化,即使因不當使用所導致之損害,亦能輕而易舉的更換新舊零件,節省維修時間、與工時費用、零件特價供應不虞維護之困擾、訓練有素之外勤服務人員,讓客戶得到最佳之售后服務。
4、魯式鼓風機壓送—壓送型低噪音、低震動:在噪音及振動之防治方面,本公司經多年加以研究,此一系列新機種乃采高精密度轉子結構,以遂行理想之逆流壓縮功能。
5、魯式鼓風機壓送—壓送型鼓風機吐出空氣之脈動,可更平滑的進行,噪音及振動均可大幅度減低,因此,就小型鼓風機而言,可免加裝出口消音器
1

